Wayne Campus Expansion

WPBC Overhead

In 2021, the Erie Center for Arts & Technology at Wayne (ECAT Wayne) officially opened as a hub for arts, education, and career development - serving as a cornerstone of East Avenue revitalization. ECAT Wayne is home to the United Way of Erie County; Primary Health Network; Erie’s Black Wall Street; Blue Coats; Lake Erie Birth Root; ShanPull Sports; and the UPMC Jameson School of Nursing.

As enrollment grew and demand increased for trained professionals, BUILD advanced the Wayne Campus Expansion to strengthen capacity and reinforce ECAT’s role as a catalyst for opportunity and investment on Erie’s eastside.

In early 2026, BUILD acquired the Wayne Park Baptist Temple, including the church building, parking lot, and contiguous parcels to create a fully connected campus that extends ECAT Wayne westward. As part of the expansion, ECAT Wayne will grow the UPMC Jameson School of Nursing footprint to include a state-of-the-art simulation lab, an additional lecture hall, and administrative offices for admissions and financial aid. The project also adds expanded, off-street parking to support the growing student and professional population. Construction is underway with an anticipated occupancy of late summer 2026.

WPBC Drawing
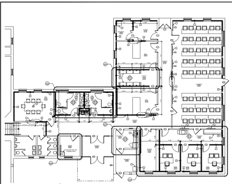
Construction Blueprints for changes to Wayne Park Baptist Temple Interior
DSC 0008 1
Exterior of Wayne Park Baptist Temple pre-renovations by ECAT Wayne